HELLERUP, BIRKEHØJ 4
Klik på billederne og se den smukke beskrivelse af boligen
Nybygget smuk bolig i cykelafstand til både Øresund og Indre by i København. Huset er bygget med filosofien om at det gode liv skal være i fokus. Et hus, der er nemt at bo i, som ikke kræver den store vedligeholdelse, men som fungerer optimalt og som giver overskud til netop at leve livet med familien. Birkehøj ligger i forbindelse med hyggelige villaveje og omgivelserne omkring Emdrup sø er smukke og grønne.
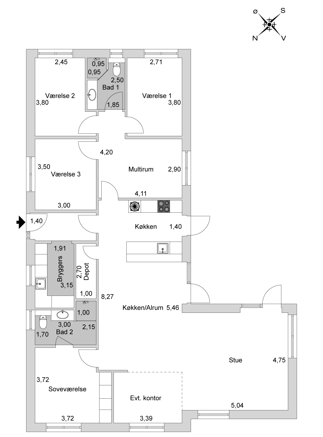
Et topmoderne allergivenligt nyt hus, med plads til den store familie, indrettet med en gennemtænkt planløsning, hvor der i den ene ende af huset er master afdeling, med skønt stort soveværelse og master badeværelse en-suite. I den anden ende finder man 2 skønne børneværelser samt gæstesoveværelse. Derudover et stort lyst badeværelse perfekt placeret mellem de 3 værelser. Denne del af huset indeholder ligeledes et skønt stort åbent aktivitetsrum, som samler fløjen. Aktivitetsrummet har god plads til hygge og leg, placeret lige op af køkkenet således at der altid er mulighed for tæt kontakt trods forskellige aktiviteter. Huset har fokus på samvær, men med rigtig god plads og mange værelser. Der er lagt vægt på at skabe god integration af haven og terrassen bl.a. via terrassedøre fra både køkken, alrum og stue.
Stilen er gennemført strømlinet og ensartet, der hersker en orden og renhed i dette hus, som emmer af det nordiske ukomplicerede liv.
FAKTA
| Kontantpris | 6.995.000 |
| Ejerudgift | 5.008 |
| Boligareal | 177 kvm |
| Sagsnummer | AR123 |
| Værelser | 7 |
| Soveværelser | 4 (mulighed for 6) |
| Byggeår | 2015 |
| Grundareal | 758 kvm |
plantegning
Vejledende tegning uden ansvar
kort
BOOK EN FREMVISNING:
Du vil modtage en bekræftelsesmail på din bookning.
Forbehold for optaget datoer og tider.
